Available €525,000 - apartment
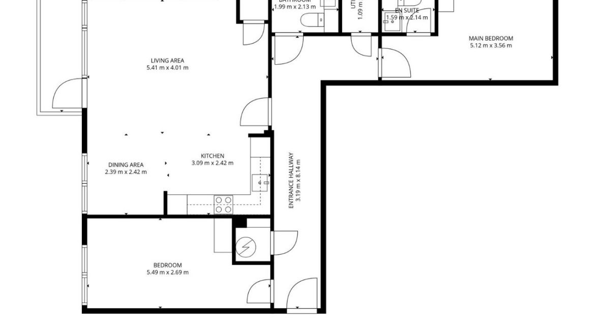
Bespoke Estate Agents are delighted to present to market this turn key 2 bedroom, 2 bathroom, third floor apartment in the highly sought after Wyckham Point Development. This apartment comes naturally light filled with a east facing living area, with private balcony and secure underground parking. The development boasts on site amenities including a 24/7 concierge service, gym and leisure centre, manicured lawns, woodland, lake and overall extremely well maintained shared spaces. The apartment itself comprises of an entrance hallway with a utility room and storage space, large main bathroom, spacious master bedroom with built in storage, en suite bathroom, 2nd bedroom with storage, fully fitted modern kitchen and an open plan living/dining room and access to a large balcony. Other features included GFCH, the kitchen contains fully integrated appliances, boiler storage room, alarm and private entrance. Situated just off Wyckham Way in Dundrum, this is a super location given its close proximity to public and private transport networks as well as a wide range of local amenities. Dundrum Town Centre is less than 1km away providing a retail, leisure and social hub within a 10 minute walk. Nutgrove shopping centre is 2km away and local villages include Dundrum, Sandyford and Stillorgan. Great local primary and secondary schools include St Tiernans, Wesley and Holy Cross. There is also a Montessori school on site. The M50 is within 2km and the N11 within 5km. The Luas at Balally is a 10 minute walk providing quick access into the city centre. This is a great property for first time buyers, people looking to downsize or investors.
The service charges are 3,523.92 for 2026.
Viewing is highly recommended.












