Available €385,000 - apartment
Bespoke Estate Agents are delighted to present No. 19 Eastmoreland Court to the market. This 1st floor apartment is set within a very well maintained development in leafy Ballsbridge, Dublin 4. The gated and private development is highly sought after given its close proximity to local amenities and the city centre.
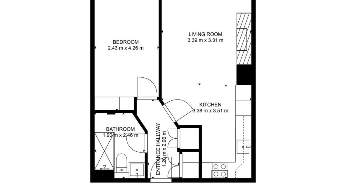
No. 19 is a bright apartment which has been tastefully refurbished to maximise the space. Upgraded with a modern fully fitted kitchen and a stylish bathroom, along with new flooring and clever built in storage. Briefly comprising of an entrance hallway with storage, a modern bathroom, large double bedroom with storage, kitchen with a breakfast counter & integrated appliances, and a living room with double doors to a balcony overlooking the leafy surroundings. A designated parking space is included with this apartment and bins and bike storage are included in the annual service charge.
Located on Eastmoreland Place, this is a prestigious and highly sought after part of Dublin 4. Directly beside the Dylan Hotel and St Mary’s Church Park, the development is just 1km to the Aviva Stadium, Merrion Square Park and St Stephens Green. Public transport and private transport links make this is an easily accessible location, with the DART at Landsdowne Road less than a 15 minute walk. The bus corridor on Pembroke Road is just 100 m from the main gate.
Viewing is highly recommended.
Features
- 0: Double glazed windows
- 1: Well maintained development with communal gardens
- 2: Central location with easy access to the City Centre
- 3: Quiet residential setting
- 4: Annual Service charge '¬2,877

















